4th arrondissement, Paris
Paris 4th, Sainte-Croix-de-la-Bretonnerie - Bright 24 m² studio on a high floor, through apartment, with elevator
Price
€425,000
Paris 4th, Sainte-Croix-de-la-Bretonnerie - Bright 24 m² studio on a high floor, through apartment, with elevator
Transaction fees including VAT to be paid by the seller
Description

Object type
Flat
Condition
Top
Rooms
1
Bathrooms
1
Floor
4
Number of Floors
6
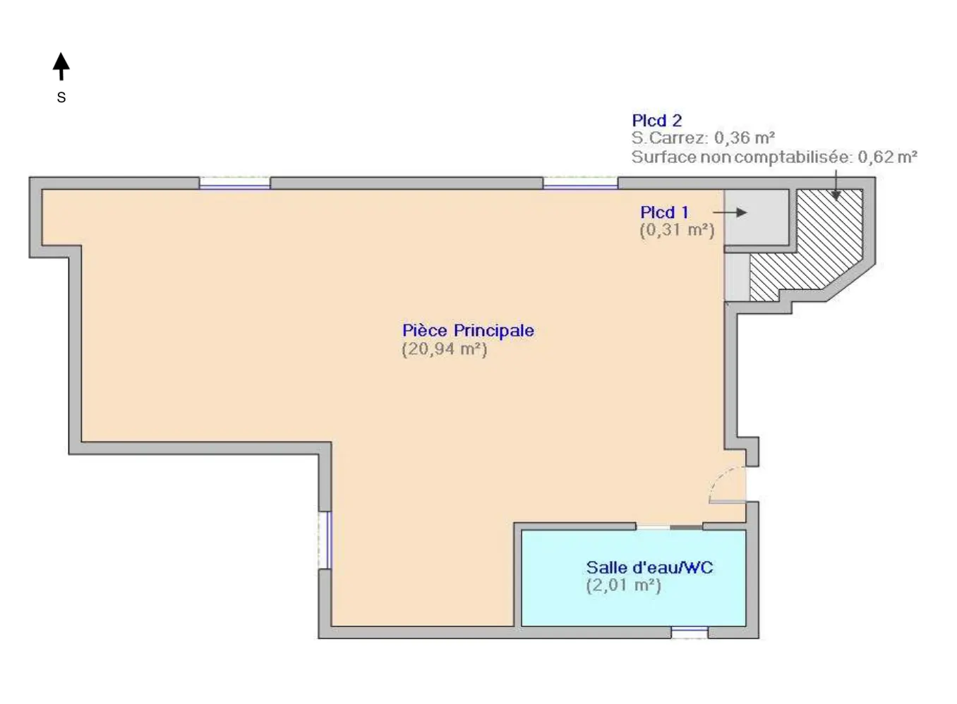
Total surface
~24 m²
Living area
~24 m²
Usable surface
~24 m²
Flooring
Parquet
Building Restrictions
None
Construction year
1900
Energy efficiency class
F
Energy certificate available
Yes
Energy source
Electric heating
Location: 4th arrondissement, Paris
The property is located in the city center, in the heart of Le Marais, close to many transport links including: Saint-Paul (Line 1) Pont-Marie (Line 7) Hôtel de Ville (Lines 1 and 11) Neighborhood life is pleasant, with many shops and places to go.
Nearby properties
These homes might interest you
- Exclusive
Your shop
Engel & Völkers Paris MMC

Provider:
EV MMC France S.A.S.
Privacy policy of content provider
SIREN: 808801955
License partner of Engel & Völkers Residential GmbH